

水平管式螺旋輸送機是工農業各部門機械化運輸工作的主要機組,可使運輸工作減輕勞動強度,提高工作效率,應用範圍很廣。适用于各行業,如建材、化工、電力、冶金、煤炭、糧食等行業,适用于水平或傾斜輸送粉狀、粒狀和小塊狀物料,如煤、灰、渣、水泥、糧食等,物料溫度小于200℃。螺旋機不适于輸送易變質的、粘性大的、易結塊的物料。

水平管式螺旋輸送機不宜輸送易變質的、粘性大的、易結塊的物料,因爲這些物料在輸送時會粘結在螺旋上,并随之旋轉而不向前移動或者在吊軸承處形成物料的積塞,而使螺旋機不能正常工作。管式螺旋輸送機螺旋直徑從200毫米到500毫米,共有五種規格,長度從4米到70米,每隔0.5米一檔,選型時符合标準公稱長度,特殊需要可在選配節中另行提出。

1.承載能力大、安全可靠。
2.适應性強、安裝維修方便、壽命長。
3.整機體積小、轉速高、确保快速均勻輸送。
4.密封性好、外殼采用無縫鋼管制作,端部采用法蘭互相連接成一體,剛性好。
水平管式螺旋輸送機是利用旋轉的螺旋将被輸送的物料沿固定的機殼内推移而進行輸送工作,頭部及尾部軸承移至殼體外,吊軸承采用滑動軸承設有防塵密封裝置,軸瓦一般采用粉末冶金,輸送水泥采用毛氈軸瓦,吊軸和螺旋軸采用滑塊連接。


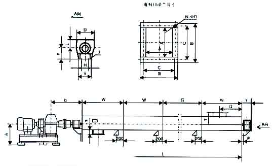
一台螺旋輸送機通常由螺旋機本體、進出裝置、驅動裝置三大部分組成。
螺旋機本體由頭節、中間節、尾節三種組成。一般情況下,出廠總裝時将中間節按長度長短依次排列,較長的中間節靠近頭節,相同 長度的中間節則挨在一起,如果有特殊要求,則在訂貨時給出排列順序。
在頭節内裝有支推軸承承受軸向力,在中間節和尾節内裝有用軸承支承螺旋軸,此外,在尾節内還裝有可軸向移動的徑向軸承以補 償螺旋軸長度的誤差和适應溫度的變化。螺旋面的形式有實體螺旋(S制法)和帶式螺旋(D制法)兩種。各螺旋軸之間采用法蘭式聯接, 保證了聯接軸的互換性,便于維修。
機蓋爲瓦片式并用蓋扣夾緊在機殼上,若需改進密封性能,用戶可自行在機蓋與機殼間加防水粗帆布。
進、出料裝置有進料口,方型出料口,手推式出料口,齒條式出料口四種。由用戶在使用現場在機體上開口焊接。布置進、出料口 位置時應注意保證料口至端部的距離,同時避免料口與吊軸承加油杯、機殼聯接法蘭、底座等相碰。
驅動裝置有ZQ系列減速器+Y系列電動機,YTC齒輪減速電機兩種。
輸送産品
您正在浏覽的是:新鄉市大漢振動機械有限公司生産的螺旋輸送機設備,如果您對螺旋輸送機型号規格、價格感興趣的話,可以随時撥打電話和我們聯系!